Oakland Rd, RIDGELY, MD

$25,000

Previous Next

1.00

Acre

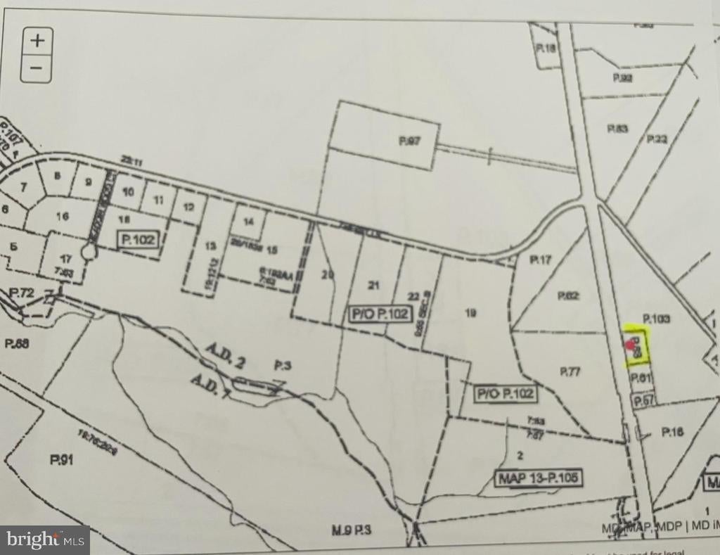
About Oakland Rd

Discover a unique opportunity to own two adjacent parcels on Oakland Road in beautiful Caroline County. This offering includes 1.0-acre identified as Tax Map 0009, Parcel 63, Grid 0023....Note there is an Additional Separate Parcel that is adjacent with 16.36 acres, listed in MLS: MDCM2006238for sale, identified as Tax Map 0009, Parcel 103, Grid 0023.....Together, these properties provide ample space, and potential for future use. Please note: There is currently no approved perc test on file. Buyers are strongly encouraged to contact Caroline County Planning & Zoning and Environmental Health to verify all potential uses and development possibilities. Whether you're looking for land to invest in or a future building opportunity, this dual-lot package offers flexibility and space at a great value.

Features of Oakland Rd

MLS® # MDCM2006240
Price $25,000
Bathrooms 0.00
Acres 1.00
Type Land
Sub-Type Land
Status Active

Community Information

Address Oakland Rd
City RIDGELY
County CAROLINE-MD
State MD
Zip Code 21660

Amenities

View Trees/Woods
Is Waterfront No

Interior

Has Basement No
Fireplace No

Exterior

Lot Description Trees/Wooded

School Information

District CAROLINE COUNTY PUBLIC SCHOOLS

Additional Information

Date Listed August 30th, 2025
Days on Market 52
Zoning R
Foreclosure No
Short Sale No
RE / Bank Owned No

Listing Details

OfficeLong & Foster Real Estate, Inc.

Listing Map

Request a Showing

Provide a valid email address.
When would you like to view this property?